403 3rd Avenue E
Alexandria, MN 56308
Price: $18
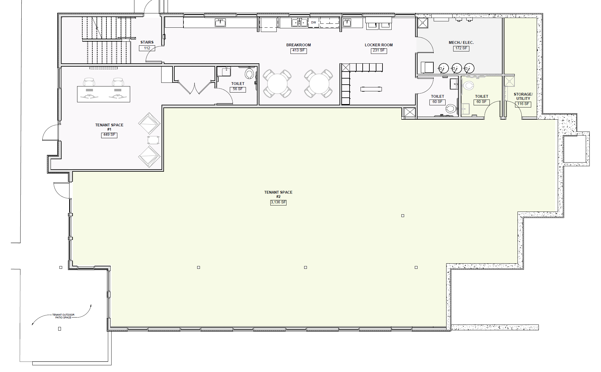
3,312 SF unfinished commercial unit for lease in a stunning, modern 2022 building! Located in the heart of downtown Alexandria with lake views, this versatile space offers endless potential, with the opportunity to customize the interior to fit your business needs. Designed with contemporary elegance, the building features sleek architectural details and an inviting atmosphere. This unit boasts high ceilings, large windows, and abundant natural light, creating an open, airy environment perfect for offices or creative endeavors. Lots of parking! Bathroom in unit. Building signage on 3rd Ave where 17,367 vehicles drive by per day! There is also foot/bike traffic on both the sidewalk and Central Lakes Trail. Woodland Dentistry and Real Films are also in building. Whether you envision a trendy boutique, innovative office space, or a stylish showroom, this unit can be transformed to meet your unique requirements! This office could be split. Call for showing today!
Basic Features:
| Style |
Office |
| Type |
Commercial Sale |
| Zoning |
Business/Commercial |
| Year Built |
2022 |
| School District |
Alexandria |
| County |
Douglas |
| Lot Size |
Irregular |
| Acreage |
0.39 acres |
| Total Baths |
1 |
| Lot Description |
Cleared,Corner Lot |
| Number of Units |
3 |
| Lake Name |
Agnes |
| Lake Depth |
31 ft |
| Tax $ / Year |
$37,660 / 2025 |
| Tax ID |
|
| Legal Description |
|
Additional Features
| Government Programs |
|
| Section |
18 |
| Terrain Type |
|
| Roads |
City Street,Paved Streets,Sidewalks,State Road |
| Cooling |
Central Air |
| Driveway |
|
| Exterior Features |
Brick/Stone,Stucco,Wood Siding |
| Foundation |
3312.00 |
| Fuel Source |
Natural Gas |
| Handicap Access |
Fully Wheelchair,No Stairs External,No Stairs Internal |
| Heating |
Forced Air |
| New Construction |
1 |
| Roof |
Age 8 Years or Less,Asphalt |
| Sewer Service |
City Sewer/Connected |
| Water Service |
City Water/Connected |
| Water Heater |
|
| Parking Lot |
Asphalt,Parking Lot,Paved Lot |
| Exterior Construction |
|
| Utilities |
Electric Separate,Heating Separate,Hot Water Separate |
| Laundry |
N |
The data relating to real estate for sale on this web site comes in part from the Broker Reciprocity℠ Program of the Regional Multiple Listing Service of Minnesota, Inc. Real estate listings held by brokerage firms other than Coldwell Banker Nybo & Associates are marked with the Broker Reciprocity℠ logo or the Broker Reciprocity℠ thumbnail logo (a little black house) and detailed information about them includes the name of the listing brokers.
DISCLAIMER: The broker providing these data believes them to be correct, but advises interested parties to confirm them before relying on them in a purchase decision. This data is updated daily. Some properties which appear for sale on this web site may subsequently have sold and may no longer be available. By viewing these listings, you are agreeing to abide by the RMLS End-User License Agreement.
© 2026 Regional Multiple Listing Service of Minnesota, Inc. All rights reserved.
Digital Millennium Copyright Act (DMCA) Notice
The Digital Millennium Copyright Act of 1998, 17 U.S.C. § 512 (the “DMCA”), provides recourse for copyright owners who believe that material appearing on the Internet infringes their rights under U.S. copyright law. If you believe in good faith that any content or material made available in connection with our website or services infringes your copyright, you (or your agent) may send us a notice requesting that the content or material be removed, or access to it blocked. Notices and counter-notices should be sent in writing by mail to Michael Bisping, Director, Customer Relations, Regional Multiple Listing Service of Minnesota, Inc, 2550 University Avenue West, Suite 259S
Saint Paul, MN 55114 or by email to mbisping@northstarmls.com. Questions can be directed by phone to 651-251-3200.
The DMCA requires that your notice of alleged copyright infringement include the following information: (1) description of the copyrighted work that is the subject of claimed infringement; (2) description of the alleged infringing content and information sufficient to permit us to locate the content; (3) contact information for you, including your address, telephone number and e-mail address; (4) a statement by you that you have a good faith belief that the content in the manner complained of is not authorized by the copyright owner, or its agent, or by the operation of any law; (5) a statement by you, signed under penalty of perjury, that the information in the notification is accurate and that you have the authority to enforce the copyrights that are claimed to be infringed; and (6) a physical or electronic signature of the copyright owner or a person authorized to act on the copyright owner’s behalf. Failure to include all of the above information may result in the delay of the processing of your complaint.