4215 E Lake Street
Minneapolis, MN 55406
Price: $1,950,000
This is your opportunity to own a highly visible, corner lot (0.40 Acre) in the highly desired Longfellow
neighborhood of Minneapolis! Just across the river from St. Paul, along Lake Street.
With a CM2 - Corridor Mixed-use District, a variety of uses are possible; ranging from residential
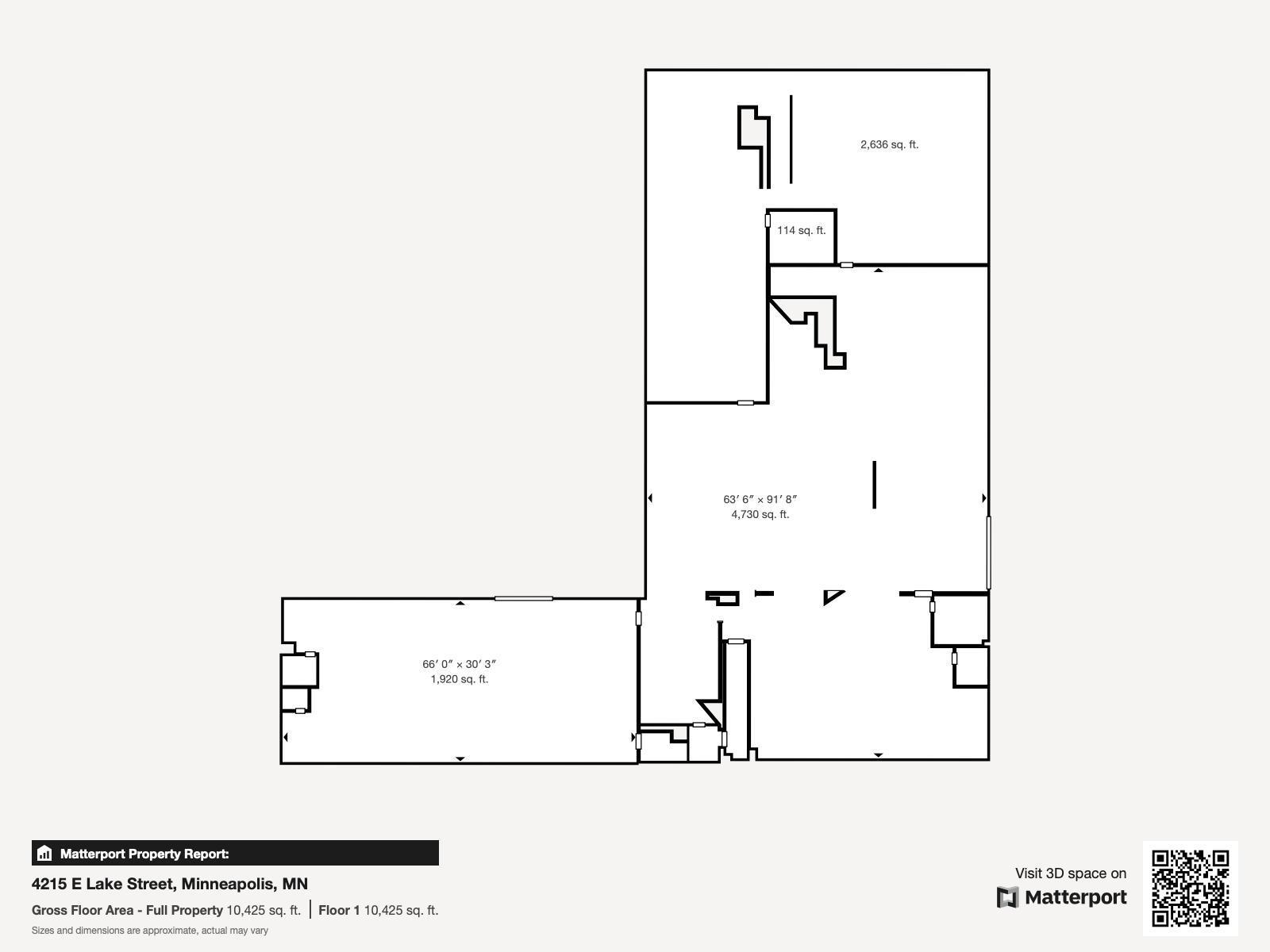
redevelopment to a re-use of the existing 10,464 SF building. Current use is the longstanding HONDA TOWN
retailer and service property with ample parking, dock & drive-in doors, plus open, high ceiling spaces.
Basic Features:
| Type |
Commercial Sale |
| Zoning |
Business/Commercial |
| Year Built |
1950 |
| School District |
Minneapolis |
| County |
Hennepin |
| Lot Size |
129x135 |
| Acreage |
0.40 acres |
| Garage |
3 Car |
| Lot Description |
Corner Lot,Some Trees |
| Number of Units |
1 |
| Tax $ / Year |
$33,109 / 2025 |
| Tax ID |
|
| Legal Description |
|
Includes:
Microwave,Refrigerator,Building
Additional Features
| Government Programs |
|
| Section |
06 |
| Terrain Type |
|
| Roads |
City Street |
| Basement |
None |
| Cooling |
Window Unit(s) |
| Driveway |
|
| Exterior Features |
Block,Brick/Stone,Wood Siding |
| Foundation |
10464.00 |
| Fuel Source |
Natural Gas |
| Handicap Access |
None |
| Heating |
Other |
| Roof |
Age Over 8 Years,Flat,Rubber |
| Sewer Service |
City Sewer/Connected |
| Water Service |
City Water/Connected |
| Water Heater |
|
| Parking Lot |
Shared Driveway,Floor Drain,Heated Garage,Multiple Garages,Parking Lot |
| Exterior Construction |
|
| Utilities |
Electric Common,Heating Common,Hot Water Common |
| Laundry |
N |
The data relating to real estate for sale on this web site comes in part from the Broker Reciprocity℠ Program of the Regional Multiple Listing Service of Minnesota, Inc. Real estate listings held by brokerage firms other than Coldwell Banker Nybo & Associates are marked with the Broker Reciprocity℠ logo or the Broker Reciprocity℠ thumbnail logo (a little black house) and detailed information about them includes the name of the listing brokers.
DISCLAIMER: The broker providing these data believes them to be correct, but advises interested parties to confirm them before relying on them in a purchase decision. This data is updated daily. Some properties which appear for sale on this web site may subsequently have sold and may no longer be available. By viewing these listings, you are agreeing to abide by the RMLS End-User License Agreement.
© 2026 Regional Multiple Listing Service of Minnesota, Inc. All rights reserved.
Digital Millennium Copyright Act (DMCA) Notice
The Digital Millennium Copyright Act of 1998, 17 U.S.C. § 512 (the “DMCA”), provides recourse for copyright owners who believe that material appearing on the Internet infringes their rights under U.S. copyright law. If you believe in good faith that any content or material made available in connection with our website or services infringes your copyright, you (or your agent) may send us a notice requesting that the content or material be removed, or access to it blocked. Notices and counter-notices should be sent in writing by mail to Michael Bisping, Director, Customer Relations, Regional Multiple Listing Service of Minnesota, Inc, 2550 University Avenue West, Suite 259S
Saint Paul, MN 55114 or by email to mbisping@northstarmls.com. Questions can be directed by phone to 651-251-3200.
The DMCA requires that your notice of alleged copyright infringement include the following information: (1) description of the copyrighted work that is the subject of claimed infringement; (2) description of the alleged infringing content and information sufficient to permit us to locate the content; (3) contact information for you, including your address, telephone number and e-mail address; (4) a statement by you that you have a good faith belief that the content in the manner complained of is not authorized by the copyright owner, or its agent, or by the operation of any law; (5) a statement by you, signed under penalty of perjury, that the information in the notification is accurate and that you have the authority to enforce the copyrights that are claimed to be infringed; and (6) a physical or electronic signature of the copyright owner or a person authorized to act on the copyright owner’s behalf. Failure to include all of the above information may result in the delay of the processing of your complaint.