4725 Linden Cove Lane
Savage, MN 55378
Price: $1,495,000
Welcome to Lakeside Living at Linden Cove! Experience effortless luxury in this stunning lakeside home, designed to impress from the moment you arrive. Step inside via a private elevator and be greeted by an abundance of natural light flowing through the open-concept main living area—perfect for entertaining or everyday relaxation. The gourmet kitchen is a chef’s dream, featuring top-tier appliances such as the Sub-Zero refrigerator and Wolf range, a generous walk-in pantry, and an expansive center island with ample storage and bar seating. Just beyond, the sunroom boasts floor-to-ceiling windows that frame breathtaking views of the lake, while the inviting living room, complete with a cozy fireplace, is ideal for unwinding year-round. Retreat to the elegant primary suite, highlighted by vaulted ceilings, a spacious walk-in closet with custom built-ins, and a spa-inspired en-suite bath. Need a quiet workspace or extra guest room? The home office offers built-in storage and flexible functionality. The lower level is designed for fun, featuring a large rec/game room perfect for gatherings. Step outside to enjoy serene lake views from your private patio or deck. Explore nature along the scenic trails of Murphy-Hanrehan Park Reserve, or take advantage of community amenities including a clubhouse and dock—perfect for your lakeside lifestyle.
Basic Features:
| Style |
(TH) Side x Side |
| Type |
Residential |
| Zoning |
Residential-Single Family |
| Year Built |
2024 |
| School District |
Prior Lake-Savage Area Schools |
| County |
Scott |
| Lot Size |
common |
| Acreage |
0.06 acres |
| Bedrooms |
3 |
| Total Baths |
3 |
| Garage |
2 Car 25x22 |
| Lot Description |
Tree Coverage - Light |
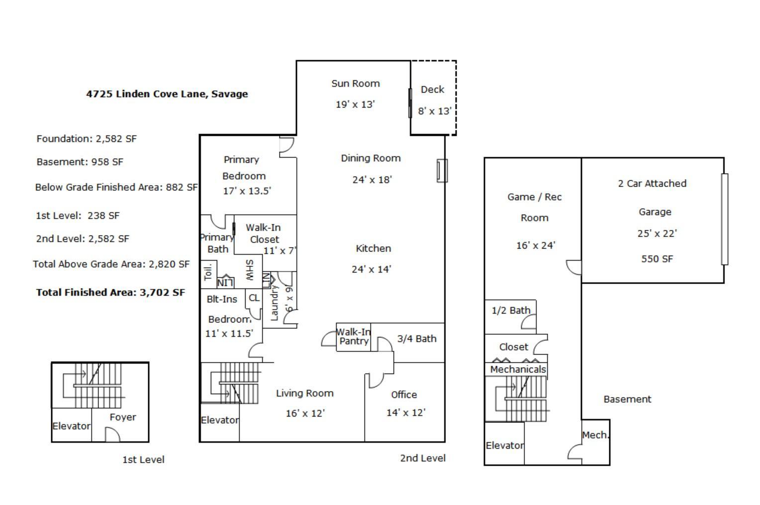
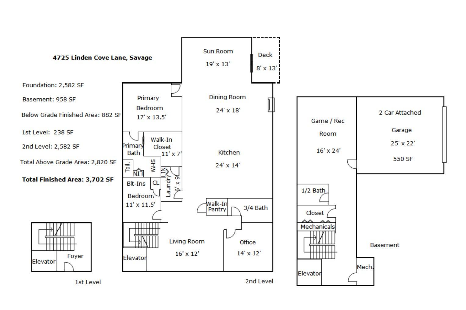
| Above Grade |
2,820 sq ft |
| Below Grade |
882 sq ft |
| Lake Name |
Hanrahan |
| Lake Depth |
7 ft |
| Tax $ / Year |
$1,732 / 2025 |
| Tax ID |
|
| Legal Description |
|
Includes:
Dishwasher,Dryer,Exhaust Fan,Microwave,Range,Refrigerator,Stainless Steel Appliances,Washer,Wine Cooler
| Rooms |
Size |
Level |
| Bedroom |
17x14 |
U |
| Bedroom 1 |
17x14 |
U |
| Bedroom 2 |
11x12 |
U |
| Bedroom 3 |
14x12 |
U |
| Dining Room |
24x18 |
U |
| Foyer |
|
M |
| Kitchen |
24x14 |
U |
| Living Room |
16x12 |
U |
| Office |
14x12 |
U |
| Recreation Room |
16x24 |
L |
| Sun Room |
19x13 |
U |
Additional Features
| Government Programs |
|
| Terrain Type |
|
| Roads |
Paved Streets,Storm Sewer |
| Baths |
1/2 Basement,Full Primary,Upper Level 3/4 Bath |
| Basement |
Finished |
| Cooling |
Central Air |
| Driveway |
|
| Exterior Features |
Fiber Cement,Fiber Board |
| Fireplace |
Gas,Living Room |
| Foundation |
2852.00 |
| Fuel Source |
Natural Gas |
| Handicap Access |
Accessible Elevator Installed |
| Heating |
Forced Air,Fireplace(s) |
| Roof |
Age 8 Years or Less |
| Sewer Service |
City Sewer/Connected |
| Water Service |
City Water/Connected |
| Water Heater |
|
| Parking Lot |
Attached Garage |
| Exterior Construction |
|
| Laundry |
L |
The data relating to real estate for sale on this web site comes in part from the Broker Reciprocity℠ Program of the Regional Multiple Listing Service of Minnesota, Inc. Real estate listings held by brokerage firms other than Coldwell Banker Nybo & Associates are marked with the Broker Reciprocity℠ logo or the Broker Reciprocity℠ thumbnail logo (a little black house) and detailed information about them includes the name of the listing brokers.
DISCLAIMER: The broker providing these data believes them to be correct, but advises interested parties to confirm them before relying on them in a purchase decision. This data is updated daily. Some properties which appear for sale on this web site may subsequently have sold and may no longer be available. By viewing these listings, you are agreeing to abide by the RMLS End-User License Agreement.
© 2026 Regional Multiple Listing Service of Minnesota, Inc. All rights reserved.
Digital Millennium Copyright Act (DMCA) Notice
The Digital Millennium Copyright Act of 1998, 17 U.S.C. § 512 (the “DMCA”), provides recourse for copyright owners who believe that material appearing on the Internet infringes their rights under U.S. copyright law. If you believe in good faith that any content or material made available in connection with our website or services infringes your copyright, you (or your agent) may send us a notice requesting that the content or material be removed, or access to it blocked. Notices and counter-notices should be sent in writing by mail to Michael Bisping, Director, Customer Relations, Regional Multiple Listing Service of Minnesota, Inc, 2550 University Avenue West, Suite 259S
Saint Paul, MN 55114 or by email to mbisping@northstarmls.com. Questions can be directed by phone to 651-251-3200.
The DMCA requires that your notice of alleged copyright infringement include the following information: (1) description of the copyrighted work that is the subject of claimed infringement; (2) description of the alleged infringing content and information sufficient to permit us to locate the content; (3) contact information for you, including your address, telephone number and e-mail address; (4) a statement by you that you have a good faith belief that the content in the manner complained of is not authorized by the copyright owner, or its agent, or by the operation of any law; (5) a statement by you, signed under penalty of perjury, that the information in the notification is accurate and that you have the authority to enforce the copyrights that are claimed to be infringed; and (6) a physical or electronic signature of the copyright owner or a person authorized to act on the copyright owner’s behalf. Failure to include all of the above information may result in the delay of the processing of your complaint.