Skip to Navigation

Search Thousands of Properties in Greater Minnesota & Western Wisconsin.

Property Details

561X Heather Ridge Court
Shoreview, MN 55126

Price: $1,268,500

Listing # 6825660


Contact Agent

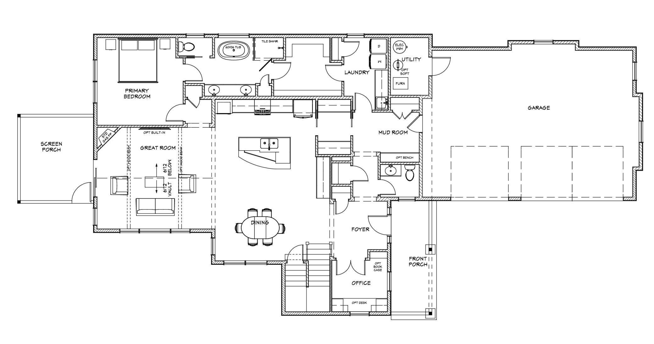
Rare Opportunity: Build Your Dream Home with Pratt Homes on a Private Shoreview Cul-de-sac Lot Create your personal sanctuary surrounded by woods and wetlands on this 1.54-acre lot in a prime Shoreview location. Nestled at the end of a quiet cul-de-sac, this is a rare opportunity to partner with renowned Pratt Homes to design and build the custom home you've always envisioned. This proposed TO-BE-BUILT plan emphasizes main-level living, blending functional design with high quality finishes. The open floor plan is an entertainer's delight, featuring a vaulted great room, a gourmet kitchen with a convenient butler's pantry, a generous dining area, and a seamless flow designed for modern life. The main-level owner's suite is a private retreat with a luxury bath and a large walk-in closet connected to laundry. A charming screened-in porch provides a peaceful space to enjoy the surrounding woods and wetlands. A dedicated main-level office, half bath and mud room complete the main level. The upper level offers a large family room, two additional bedrooms, and a 3/4 bath. Your Home, Your Design - The provided floor plan is just the beginning. Pratt Homes offers full customization options, allowing you to personalize every finish and fixture to reflect your unique style and needs. You can modify this plan or collaborate with our expert team to design the home you desire. Premier Location & Lifestyle - This property is situated in the highly sought-after Mounds View School District, a significant draw for families. Shoreview itself provides a coveted lifestyle with abundant natural amenities, offering easy access to beautiful lakes, beaches, parks, trails, and open spaces for endless outdoor recreation. Don't miss this chance to build a legacy home in an irreplaceable location. Contact us today to schedule a site tour and begin the journey of building your dream home.

Basic Features:

Style Single Family Residence
Type Residential
Zoning Residential-Single Family
Year Built 2026
School District Mounds View
County Ramsey
Lot Size 221x23x486x240x535
Acreage 1.54 acres
Bedrooms 3
Total Baths 3
Garage 4 Car
Lot Description Irregular Lot,Tree Coverage - Heavy,Underground Utilities
Above Grade 2,753 sq ft
Tax $ / Year $2,192 / 2025
Tax ID
Legal Description

Includes:

Air-To-Air Exchanger,Electric Water Heater,Other

Rooms Size Level
Bedroom 14x13 M
Bedroom 2 11x12 U
Bedroom 3 12x15 U
Dining Room 10x14 M
Family Room 15x18 U
Great Room 16x18 M
Kitchen 15x16 M
Laundry 11x7 M
Mud Room 7x10 M
Office 8x9 M
Pantry (Walk-In) 9x5 M
Primary Bathroom 9x14 M
Screened Porch 12x14 M
Walk-In Closet 11x9 M
Additional Features
Government Programs
Section 01
Terrain Type
Roads City Street,Cul De Sac,Curbs,Paved Streets
Baths Double Sink,Full Primary,Private Primary,Main Floor 1/2 Bath,Main Floor Full Bath,Separate Tub & Shower,Upper Level 3/4 Bath,Walk-In Shower Stall
Basement None
Cooling Central Air
Driveway
Electric Circuit Breakers,200+ Amp Service
Fireplace Gas
Foundation 1863.00
Fuel Source Natural Gas
Handicap Access None
Heating Forced Air
Roof Architectural Shingle,Asphalt,Pitched
Sewer Service City Sewer - In Street
Water Service City Water - In Street
Water Heater
Parking Lot Attached Garage,Asphalt,Shared Driveway,Garage Door Opener
Exterior Construction
Laundry L

The data relating to real estate for sale on this web site comes in part from the Broker Reciprocity℠ Program of the Regional Multiple Listing Service of Minnesota, Inc. Real estate listings held by brokerage firms other than Coldwell Banker Nybo & Associates are marked with the Broker Reciprocity℠ logo or the Broker Reciprocity℠ thumbnail logo (a little black house) and detailed information about them includes the name of the listing brokers.

DISCLAIMER: The broker providing these data believes them to be correct, but advises interested parties to confirm them before relying on them in a purchase decision. This data is updated daily. Some properties which appear for sale on this web site may subsequently have sold and may no longer be available. By viewing these listings, you are agreeing to abide by the RMLS End-User License Agreement.

© 2026 Regional Multiple Listing Service of Minnesota, Inc. All rights reserved.

Digital Millennium Copyright Act (DMCA) Notice The Digital Millennium Copyright Act of 1998, 17 U.S.C. § 512 (the “DMCA”), provides recourse for copyright owners who believe that material appearing on the Internet infringes their rights under U.S. copyright law. If you believe in good faith that any content or material made available in connection with our website or services infringes your copyright, you (or your agent) may send us a notice requesting that the content or material be removed, or access to it blocked. Notices and counter-notices should be sent in writing by mail to Michael Bisping, Director, Customer Relations, Regional Multiple Listing Service of Minnesota, Inc, 2550 University Avenue West, Suite 259S Saint Paul, MN 55114 or by email to mbisping@northstarmls.com. Questions can be directed by phone to 651-251-3200.

The DMCA requires that your notice of alleged copyright infringement include the following information: (1) description of the copyrighted work that is the subject of claimed infringement; (2) description of the alleged infringing content and information sufficient to permit us to locate the content; (3) contact information for you, including your address, telephone number and e-mail address; (4) a statement by you that you have a good faith belief that the content in the manner complained of is not authorized by the copyright owner, or its agent, or by the operation of any law; (5) a statement by you, signed under penalty of perjury, that the information in the notification is accurate and that you have the authority to enforce the copyrights that are claimed to be infringed; and (6) a physical or electronic signature of the copyright owner or a person authorized to act on the copyright owner’s behalf. Failure to include all of the above information may result in the delay of the processing of your complaint.