Skip to Navigation

Search Thousands of Properties in Greater Minnesota & Western Wisconsin.

Property Details

13975 27th Street N
West Lakeland Twp, MN 55082

Price: $1,599,900

Listing # 7007884


Contact Agent

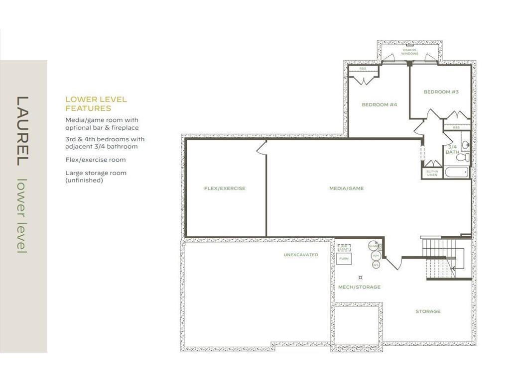
Welcome to the stunning Laurel home, a perfect blend of luxury and functionality! This exquisite residence features a spacious main level with a chef’s gourmet kitchen boasting a large island, oversized center island & walk-in pantry, ideal for culinary enthusiasts. The dramatic great room/dining room with vaulted ceiling and 12' sliding patio doors with transoms opens to an optional great room beamed ceiling or sunroom, enhancing the open and airy feel. Enjoy a luxurious primary suite with ceramic tile shower, freestanding tub, dual vanities, and walk-in closet with laundry room access, plus an optional vaulted ceiling for added elegance. A second bedroom, 3/4 bathroom, and study with double door entry complete this level, alongside a spacious mudroom with built-in bench and walk-in closet. The lower level offers a versatile media/game room with an optional bar & fireplace, perfect for entertaining. Construction will be completed by March 12, 2026 and available for closing after April 20, 2026.

Basic Features:

Style Single Family
Type Residential
Zoning Residential-Single Family
Year Built 2026
School District Stillwater
County Washington
Lot Size 1
Acreage 2.50 acres
Bedrooms 4
Total Baths 3
Garage 3 Car 31x22
Lot Description Corner Lot,Irregular Lot,Sod Included in Price,Tree Coverage - Medium
Above Grade 2,584 sq ft
Below Grade 1,723 sq ft
Tax $ / Year $1,338 / 2025
Tax ID
Legal Description

Includes:

Air-To-Air Exchanger,Cooktop,Dishwasher,Disposal,Double Oven,Dryer,ENERGY STAR Qualified Appliances,Exhaust Fan,Freezer,Humidifier,Gas Water Heater,Water Filtration System,Microwave,Refrigerator,Stainless Steel Appliances,Tankless Water Heater,Wall Ove...

Rooms Size Level
Bar/Wet Bar Room 11x8 L
Bedroom 15x16 M
Bedroom 2 11x11 M
Bedroom 3 10x10 L
Bedroom 4 12x12 L
Bedroom 5 11x13 L
Bonus Room 15x20 U
Dining Room 12x19 M
Exercise Room 20x6 L
Great Room 18x21 M
Kitchen 21x13 M
Laundry 10x7 M
Office 10x11 M
Pantry (Walk-In) 6x7 M
Recreation Room 31x16 L
Study 10x12 M
Sun Room 21x12 M
Additional Features
Government Programs
Section 20
Terrain Type
Roads City Street,Cul De Sac,Paved Streets
Baths 3/4 Basement,Basement,Double Sink,Bathroom Ensuite,Full Primary,Private Primary,Main Floor 3/4 Bath,Main Floor Full Bath,Separate Tub & Shower,Walk-In Shower Stall
Basement Daylight/Lookout Windows,Drain Tiled,Drainage System,Egress Window(s),Finished,Full,Concrete,Partially Finished,Storage Space,Sump Pump
Cooling Central Air,Zoned
Driveway
Electric Circuit Breakers,200+ Amp Service
Exterior Features Concrete,Frame
Fireplace Gas,Living Room
Foundation 2127.00
Fuel Source Electric,Natural Gas
Handicap Access None
Heating Forced Air,Humidifier,In-Floor Heating,Radiant,Zoned
New Construction 1
Pool None
Roof Age 8 Years or Less,Asphalt,Pitched
Sewer Service Private Sewer,Septic System Compliant - Yes
Water Service Private,Well
Water Heater
Parking Lot Attached Garage,Asphalt,Garage Door Opener,Heated Garage,Insulated Garage
Exterior Construction
Fencing None
Laundry E

The data relating to real estate for sale on this web site comes in part from the Broker Reciprocity℠ Program of the Regional Multiple Listing Service of Minnesota, Inc. Real estate listings held by brokerage firms other than Coldwell Banker Nybo & Associates are marked with the Broker Reciprocity℠ logo or the Broker Reciprocity℠ thumbnail logo (a little black house) and detailed information about them includes the name of the listing brokers.

DISCLAIMER: The broker providing these data believes them to be correct, but advises interested parties to confirm them before relying on them in a purchase decision. This data is updated daily. Some properties which appear for sale on this web site may subsequently have sold and may no longer be available. By viewing these listings, you are agreeing to abide by the RMLS End-User License Agreement.

© 2026 Regional Multiple Listing Service of Minnesota, Inc. All rights reserved.

Digital Millennium Copyright Act (DMCA) Notice The Digital Millennium Copyright Act of 1998, 17 U.S.C. § 512 (the “DMCA”), provides recourse for copyright owners who believe that material appearing on the Internet infringes their rights under U.S. copyright law. If you believe in good faith that any content or material made available in connection with our website or services infringes your copyright, you (or your agent) may send us a notice requesting that the content or material be removed, or access to it blocked. Notices and counter-notices should be sent in writing by mail to Michael Bisping, Director, Customer Relations, Regional Multiple Listing Service of Minnesota, Inc, 2550 University Avenue West, Suite 259S Saint Paul, MN 55114 or by email to mbisping@northstarmls.com. Questions can be directed by phone to 651-251-3200.

The DMCA requires that your notice of alleged copyright infringement include the following information: (1) description of the copyrighted work that is the subject of claimed infringement; (2) description of the alleged infringing content and information sufficient to permit us to locate the content; (3) contact information for you, including your address, telephone number and e-mail address; (4) a statement by you that you have a good faith belief that the content in the manner complained of is not authorized by the copyright owner, or its agent, or by the operation of any law; (5) a statement by you, signed under penalty of perjury, that the information in the notification is accurate and that you have the authority to enforce the copyrights that are claimed to be infringed; and (6) a physical or electronic signature of the copyright owner or a person authorized to act on the copyright owner’s behalf. Failure to include all of the above information may result in the delay of the processing of your complaint.