Skip to Navigation

Search Thousands of Properties in Greater Minnesota & Western Wisconsin.

Property Details

22620 Hayward Avenue N
Forest Lake, MN 55025

Price: $2,650,000

Listing # 7016129


Contact Agent

Experience effortless luxury in this beautifully updated waterfront estate showcasing tranquil views, refined finishes, and nearly $700K in thoughtful upgrades. Sun-filled living spaces, a fully remodeled kitchen designed for both cooking and gathering, an elegant primary suite, and multiple entertaining areas create a home that lives comfortably and impresses effortlessly. A resort-style indoor pool and spa elevate year-round enjoyment, while unforgettable sunsets, a flat lakeside lawn, and 110 ft of shoreline complete this exceptional retreat—crafted for those who appreciate elevated living.

Basic Features:

Style Single Family Residence
Type Residential
Zoning Residential-Single Family
Year Built 2004
School District Forest Lake
County Washington
Lot Size 100x244x90x228
Acreage 0.54 acres
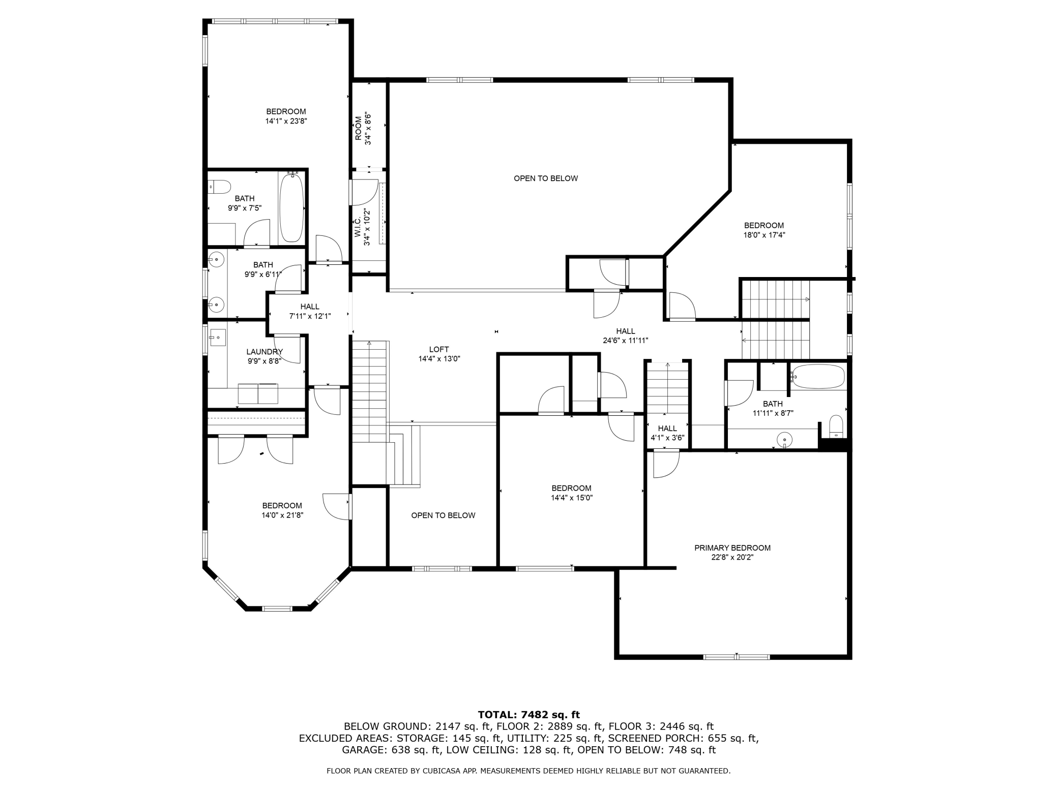
Bedrooms 6
Total Baths 6
Garage 5 Car 23x33
Lot Description Tree Coverage - Medium
Above Grade 5,335 sq ft
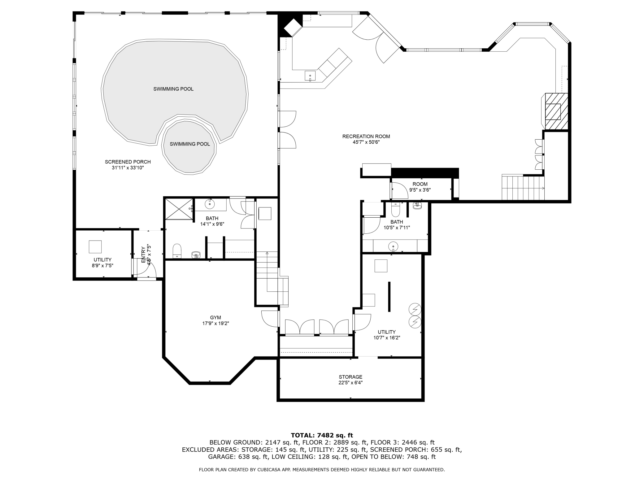
Below Grade 2,147 sq ft
Water Frontage 110 ft
Tax $ / Year $20,652 / 2025
Tax ID
Legal Description

Includes:

Air-To-Air Exchanger,Central Vacuum,Cooktop,Dishwasher,Disposal,Double Oven,Dryer,ENERGY STAR Qualified Appliances,Exhaust Fan,Humidifier,Gas Water Heater,Water Filtration System,Water Osmosis System,Microwave,Refrigerator,Stainless Steel Appliances,Wa...

Rooms Size Level
Bar/Wet Bar Room 6x8 M
Bathroom 15x15 M
Bedroom 18x21 M
Bedroom 2 15x16 U
Bedroom 3 14x15 U
Bedroom 4 14x15 U
Bedroom 5 14x14 U
Bedroom 6 23x20 U
Billiard 10x24 L
Bonus Room 16x34 U
Deck 34x8 M
Dining Room 12x19 M
Exercise Room 18x19 L
Family Room 18x24 L
Foyer 8x14 M
Game Room 13x16 L
Great Room 18x29 M
Informal Dining Room 12x10 M
Kitchen 17x21 M
Laundry 10x9 U
Loft 14x13 U
Mud Room 10x12 M
Office 13x14 M
Patio 16x50 L
Porch 9x24 M
Sauna 32x34 L
Additional Features
Government Programs
Section 10
Terrain Type
Roads City Street,Paved Streets
Baths 3/4 Basement,Double Sink,Bathroom Ensuite,Full Primary,Full Basement,Private Primary,Main Floor 1/2 Bath,Separate Tub & Shower,Steam Shower,Upper Level Full Bath,Jetted Tub,Walk-In Shower Stall
Basement Drain Tiled,Drainage System,Finished,Full,Concrete,Storage Space,Sump Pump,Walkout
Cooling Central Air
Driveway
Exterior Features Concrete,Frame
Fireplace Family Room,Gas,Living Room,Primary Bedroom,Stone
Foundation 2889.00
Fuel Source Natural Gas
Handicap Access None
Heating Boiler,Forced Air,Fireplace(s),Humidifier,In-Floor Heating
Other Buildings Garage(s),Bunk House
Pool Below Ground,Heated,Indoor
Roof Age Over 8 Years,Architectural Shingle,Asphalt
Sewer Service City Sewer/Connected
Water Service Private,Well
Water Heater
Parking Lot Attached Garage,Detached Garage,Asphalt,Electric Vehicle Charging Station(s),Floor Drain,Finished Garage,Garage Door Opener,Heated Garage,Insulated Garage,Multiple Garages,RV Access/Parking
Exterior Construction
Fencing Invisible
Laundry L

The data relating to real estate for sale on this web site comes in part from the Broker Reciprocity℠ Program of the Regional Multiple Listing Service of Minnesota, Inc. Real estate listings held by brokerage firms other than Coldwell Banker Nybo & Associates are marked with the Broker Reciprocity℠ logo or the Broker Reciprocity℠ thumbnail logo (a little black house) and detailed information about them includes the name of the listing brokers.

DISCLAIMER: The broker providing these data believes them to be correct, but advises interested parties to confirm them before relying on them in a purchase decision. This data is updated daily. Some properties which appear for sale on this web site may subsequently have sold and may no longer be available. By viewing these listings, you are agreeing to abide by the RMLS End-User License Agreement.

© 2026 Regional Multiple Listing Service of Minnesota, Inc. All rights reserved.

Digital Millennium Copyright Act (DMCA) Notice The Digital Millennium Copyright Act of 1998, 17 U.S.C. § 512 (the “DMCA”), provides recourse for copyright owners who believe that material appearing on the Internet infringes their rights under U.S. copyright law. If you believe in good faith that any content or material made available in connection with our website or services infringes your copyright, you (or your agent) may send us a notice requesting that the content or material be removed, or access to it blocked. Notices and counter-notices should be sent in writing by mail to Michael Bisping, Director, Customer Relations, Regional Multiple Listing Service of Minnesota, Inc, 2550 University Avenue West, Suite 259S Saint Paul, MN 55114 or by email to mbisping@northstarmls.com. Questions can be directed by phone to 651-251-3200.

The DMCA requires that your notice of alleged copyright infringement include the following information: (1) description of the copyrighted work that is the subject of claimed infringement; (2) description of the alleged infringing content and information sufficient to permit us to locate the content; (3) contact information for you, including your address, telephone number and e-mail address; (4) a statement by you that you have a good faith belief that the content in the manner complained of is not authorized by the copyright owner, or its agent, or by the operation of any law; (5) a statement by you, signed under penalty of perjury, that the information in the notification is accurate and that you have the authority to enforce the copyrights that are claimed to be infringed; and (6) a physical or electronic signature of the copyright owner or a person authorized to act on the copyright owner’s behalf. Failure to include all of the above information may result in the delay of the processing of your complaint.