Skip to Navigation

Search Thousands of Properties in Greater Minnesota & Western Wisconsin.

Property Details

8175 Riverdale Drive NW
Anoka, MN 55303

Price: $1,800,000

Listing # 7021947


Contact Agent

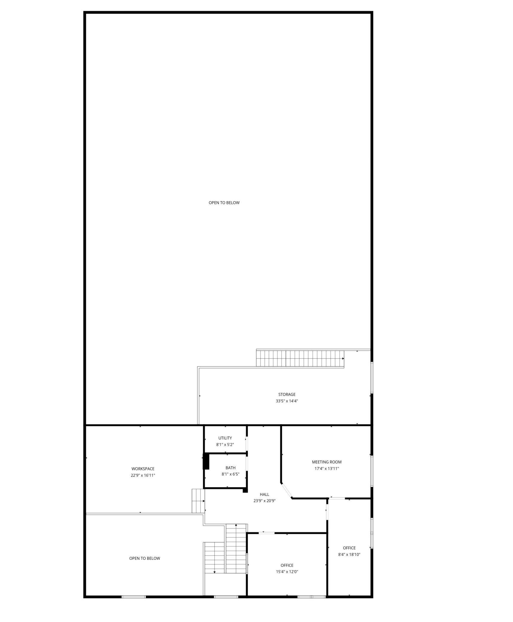
Mixed use building with 5 new 12x14 overhead doors and openers, nearly 5000 sq feet of warehouse/garage space with radiant heat through out, storage racking, mezzanine storage. 2 new forced air AC units and furnaces serve showroom and completely remodeled office space and kitchen. Showroom/sales floor with receptionist desk and 2 customer bathrooms, upper level mezzanine with approx 880 sq ft with office space, bathroom, and a conference room. Prime real estate on Hwy 10 and Armstrong Blvd. with volumes of traffic daily.

Basic Features:

Type Commercial Sale
Zoning Business/Commercial
Year Built 1999
School District Anoka-Hennepin
County Anoka
Lot Size 238x177x83x123x115
Acreage 0.70 acres
Garage 5 Car 81x53
Number of Units 1
Tax $ / Year $22,183 / 2026
Tax ID
Legal Description

Includes:

Building

Additional Features
Government Programs
Section 29
Terrain Type
Driveway
Foundation 7920.00
Fuel Source Natural Gas
Handicap Access No Stairs External
Heating Forced Air,Radiant
Sewer Service City Sewer - In Street,Septic System Compliant - No
Water Service Well
Water Heater
Parking Lot Parking Lot
Exterior Construction
Utilities Electric Separate,Heating Separate
Laundry N

The data relating to real estate for sale on this web site comes in part from the Broker Reciprocity℠ Program of the Regional Multiple Listing Service of Minnesota, Inc. Real estate listings held by brokerage firms other than Coldwell Banker Nybo & Associates are marked with the Broker Reciprocity℠ logo or the Broker Reciprocity℠ thumbnail logo (a little black house) and detailed information about them includes the name of the listing brokers.

DISCLAIMER: The broker providing these data believes them to be correct, but advises interested parties to confirm them before relying on them in a purchase decision. This data is updated daily. Some properties which appear for sale on this web site may subsequently have sold and may no longer be available. By viewing these listings, you are agreeing to abide by the RMLS End-User License Agreement.

© 2026 Regional Multiple Listing Service of Minnesota, Inc. All rights reserved.

Digital Millennium Copyright Act (DMCA) Notice The Digital Millennium Copyright Act of 1998, 17 U.S.C. § 512 (the “DMCA”), provides recourse for copyright owners who believe that material appearing on the Internet infringes their rights under U.S. copyright law. If you believe in good faith that any content or material made available in connection with our website or services infringes your copyright, you (or your agent) may send us a notice requesting that the content or material be removed, or access to it blocked. Notices and counter-notices should be sent in writing by mail to Michael Bisping, Director, Customer Relations, Regional Multiple Listing Service of Minnesota, Inc, 2550 University Avenue West, Suite 259S Saint Paul, MN 55114 or by email to mbisping@northstarmls.com. Questions can be directed by phone to 651-251-3200.

The DMCA requires that your notice of alleged copyright infringement include the following information: (1) description of the copyrighted work that is the subject of claimed infringement; (2) description of the alleged infringing content and information sufficient to permit us to locate the content; (3) contact information for you, including your address, telephone number and e-mail address; (4) a statement by you that you have a good faith belief that the content in the manner complained of is not authorized by the copyright owner, or its agent, or by the operation of any law; (5) a statement by you, signed under penalty of perjury, that the information in the notification is accurate and that you have the authority to enforce the copyrights that are claimed to be infringed; and (6) a physical or electronic signature of the copyright owner or a person authorized to act on the copyright owner’s behalf. Failure to include all of the above information may result in the delay of the processing of your complaint.