10412 Robinwood Road
Chaska, MN 55318
Price: $
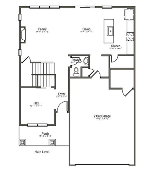
Available now this 3 bedroom home located just a few miles south of Victoria and close to Chaska. The home has 1888 finished sq ft. The main level has an open concept kitchen/dining/living room with plenty of morning sunshine with the large windows. There is an island kitchen with granite counters. The main level also has an office or "Flex Room". The 2nd floor has 3 bedrooms with a private primary suite with a dual vanity and large walk-in closet. Also on the 2nd level is a laundry room with a washer and dryer provided. Large2 car insulated garage. Up to 2 pets are welcome with pet fees. As a resident of this rental community, you will have access to an amazing Clubhouse with a Party Room, Exercise Room and an Outdoor Pool. The management maintains the lawn and snow removal for you with no extra cost. Available for a 12-18 month lease or a shorter lease for 6+ month for an extra fee. Call for a tour.
Basic Features:
| Style |
Single Family Residence |
| Type |
Residential Lease |
| Zoning |
Residential-Single Family |
| Year Built |
2023 |
| School District |
Eastern Carver County Schools |
| County |
Carver |
| Lot Size |
various |
| Acreage |
0.15 acres |
| Bedrooms |
3 |
| Total Baths |
3 |
| Garage |
2 Car |
| Above Grade |
1,888 sq ft |
| Tax $ / Year |
$0 / N/A |
| Tax ID |
|
| Legal Description |
|
Includes:
Dishwasher,Disposal,Dryer,Exhaust Fan,Freezer,Microwave,Range,Refrigerator,Stainless Steel Appliances,Washer
Additional Features
| Government Programs |
|
| Terrain Type |
|
| Baths |
Main Floor 1/2 Bath,Upper Level 3/4 Bath,Upper Level Full Bath |
| Basement |
Storage Space |
| Cooling |
Central Air |
| Driveway |
|
| Fireplace |
Gas |
| Foundation |
1888.00 |
| Fuel Source |
Natural Gas |
| Handicap Access |
None |
| Heating |
Forced Air |
| Pool |
Below Ground,Outdoor,Shared |
| Sewer Service |
City Sewer/Connected |
| Water Service |
City Water/Connected |
| Water Heater |
|
| Parking Lot |
Attached Garage |
| Exterior Construction |
|
| Laundry |
L |
The data relating to real estate for sale on this web site comes in part from the Broker Reciprocity℠ Program of the Regional Multiple Listing Service of Minnesota, Inc. Real estate listings held by brokerage firms other than Coldwell Banker Nybo & Associates are marked with the Broker Reciprocity℠ logo or the Broker Reciprocity℠ thumbnail logo (a little black house) and detailed information about them includes the name of the listing brokers.
DISCLAIMER: The broker providing these data believes them to be correct, but advises interested parties to confirm them before relying on them in a purchase decision. This data is updated daily. Some properties which appear for sale on this web site may subsequently have sold and may no longer be available. By viewing these listings, you are agreeing to abide by the RMLS End-User License Agreement.
© 2026 Regional Multiple Listing Service of Minnesota, Inc. All rights reserved.
Digital Millennium Copyright Act (DMCA) Notice
The Digital Millennium Copyright Act of 1998, 17 U.S.C. § 512 (the “DMCA”), provides recourse for copyright owners who believe that material appearing on the Internet infringes their rights under U.S. copyright law. If you believe in good faith that any content or material made available in connection with our website or services infringes your copyright, you (or your agent) may send us a notice requesting that the content or material be removed, or access to it blocked. Notices and counter-notices should be sent in writing by mail to Michael Bisping, Director, Customer Relations, Regional Multiple Listing Service of Minnesota, Inc, 2550 University Avenue West, Suite 259S
Saint Paul, MN 55114 or by email to mbisping@northstarmls.com. Questions can be directed by phone to 651-251-3200.
The DMCA requires that your notice of alleged copyright infringement include the following information: (1) description of the copyrighted work that is the subject of claimed infringement; (2) description of the alleged infringing content and information sufficient to permit us to locate the content; (3) contact information for you, including your address, telephone number and e-mail address; (4) a statement by you that you have a good faith belief that the content in the manner complained of is not authorized by the copyright owner, or its agent, or by the operation of any law; (5) a statement by you, signed under penalty of perjury, that the information in the notification is accurate and that you have the authority to enforce the copyrights that are claimed to be infringed; and (6) a physical or electronic signature of the copyright owner or a person authorized to act on the copyright owner’s behalf. Failure to include all of the above information may result in the delay of the processing of your complaint.