Skip to Navigation

Search Thousands of Properties in Greater Minnesota & Western Wisconsin.

Property Details

9520 Scott Street
Greenfield, MN 55373

Price: $1,250,000

Listing # 7035672


Contact Agent

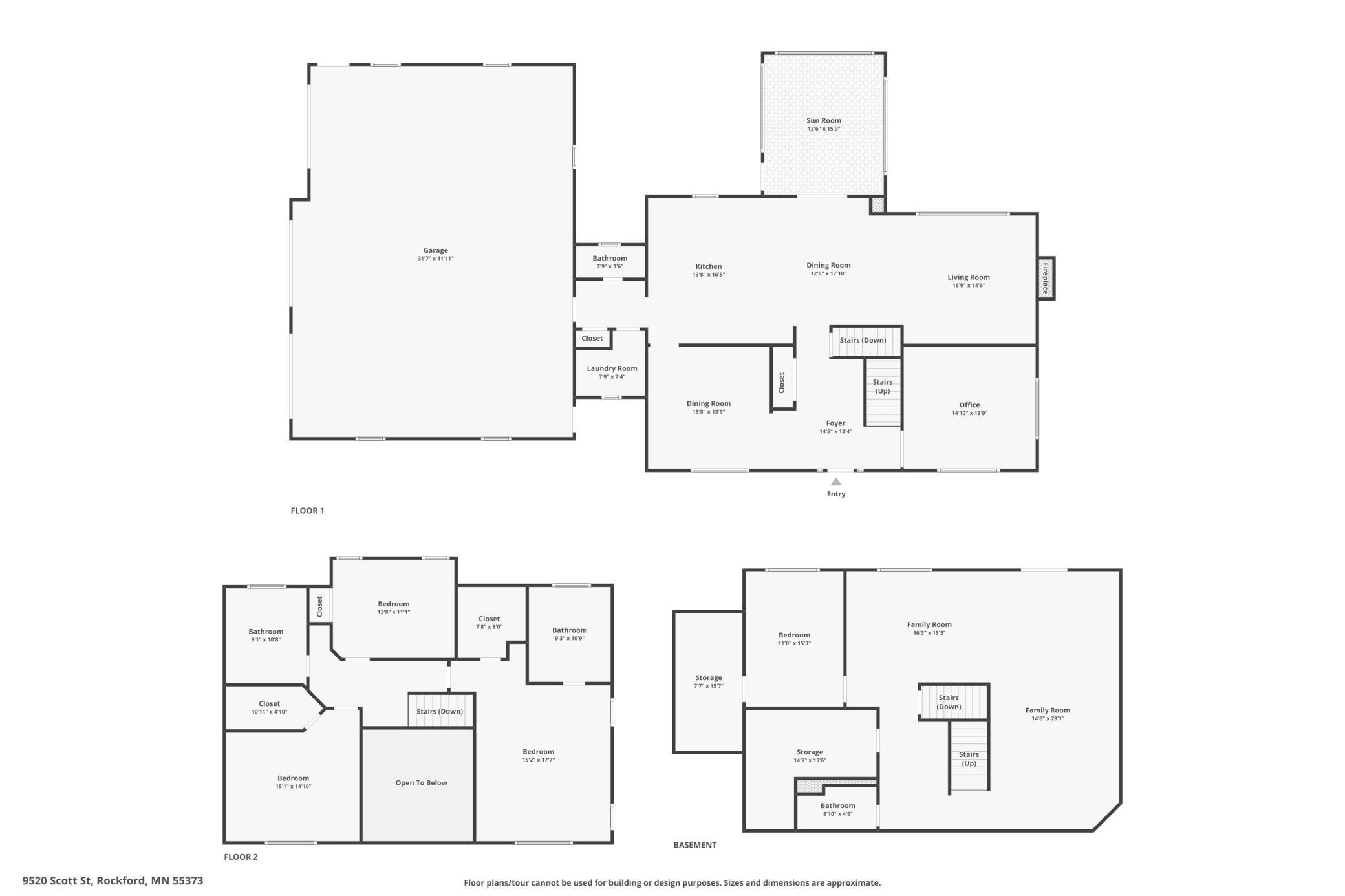
This one-of-a-kind, elegant colonial-style home offers over 4,300 square feet of refined living space set on nearly four acres of beautifully maintained property with panoramic views. Blending timeless architecture with modern functionality, it provides the ideal setting for both everyday living and exceptional entertaining. Situated on a quiet no-through street, the property enjoys added privacy with minimal traffic, creating a peaceful retreat just minutes from local amenities. The main level features a spacious and inviting layout that includes a formal dining room, a sun-filled living room with a gas fireplace, and a beautifully appointed kitchen with granite countertops, custom cabinetry, and a generous center island. Conveniently located on this level is a laundry room, adding to everyday ease and functionality. Just off the main living space, a bright four-season porch offers year-round comfort and scenic views of the expansive backyard. A dedicated office on the main level provides the perfect space for remote work, study, or creative projects—quietly tucked away for focus and privacy. Upstairs, the luxurious primary suite offers an en suite bath with dual vanities, a soaking tub, and a walk-in closet. Two secondary bedrooms provide flexibility for family, guests, or additional work-from-home needs, accompanied by another full bathroom on this level. The walk-out lower level is designed for entertaining, featuring a large open recreation area, a wet bar, and seamless access to exterior custom hardscaping with patio, seating areas, and a fire pit - Perfect for gatherings, grilling, or relaxing under the stars. A 3/4 bath and a fourth bedroom on this level add convenience and versatility for guests or family. An impressive finished, heated and air conditioned 44' x 38' detached garage, in addition to an attached three-car garage, offers outstanding versatility for a workshop, car collection, or substantial storage needs. Set in a peaceful, open setting with easy access to parks, local amenities, and major routes, this home delivers exceptional space, flexibility, and comfort—inside and out

Basic Features:

Style Single Family
Type Residential
Zoning Residential-Single Family
Year Built 2000
School District Rockford
County Hennepin
Lot Size 384X428X562X324
Acreage 3.73 acres
Bedrooms 4
Total Baths 4
Garage 3 Car 42X31
Lot Description Irregular Lot,Tree Coverage - Light
Above Grade 2,940 sq ft
Below Grade 1,386 sq ft
Tax $ / Year $10,643 / 2025
Tax ID
Legal Description

Includes:

Air-To-Air Exchanger,Central Vacuum,Chandelier,Cooktop,Dishwasher,Disposal,Double Oven,Dryer,Exhaust Fan,Freezer,Humidifier,Gas Water Heater,Microwave,Refrigerator,Stainless Steel Appliances,Wall Oven,Washer,Water Softener Owned

Rooms Size Level
Bathroom M
Bedroom U
Bedroom 2 U
Bedroom 3 U
Bedroom 4 B
Dining Room M
Family Room B
Foyer M
Informal Dining Room M
Kitchen M
Laundry M
Living Room M
Mud Room M
Office M
Primary Bathroom U
Recreation Room B
Storage B
Sun Room M
Utility Room B
Walk-In Closet U
Additional Features
Government Programs
Section 10
Terrain Type
Roads City Street,No Outlet/Dead End,Paved Streets
Baths 3/4 Basement,Double Sink,Bathroom Ensuite,Full Primary,Private Primary,Main Floor 1/2 Bath,Upper Level Full Bath,Walk-In Shower Stall
Basement Egress Window(s),Finished,Full,Storage Space,Sump Basket,Walkout
Cooling Central Air,Ductless Mini-Split
Driveway
Electric Circuit Breakers,200+ Amp Service
Fireplace Gas
Foundation 1725.00
Fuel Source Natural Gas
Handicap Access None
Heating Forced Air,In-Floor Heating
Other Buildings Garage(s)
Roof Age 8 Years or Less,Asphalt
Sewer Service Mound Septic
Water Service Well
Water Heater
Parking Lot Attached Garage,Detached Garage,Asphalt,Electric,Finished Garage,Garage Door Opener,Heated Garage,Insulated Garage,Multiple Garages
Exterior Construction
Exterior Features Steel Siding
Laundry E

The data relating to real estate for sale on this web site comes in part from the Broker Reciprocity℠ Program of the Regional Multiple Listing Service of Minnesota, Inc. Real estate listings held by brokerage firms other than Coldwell Banker Nybo & Associates are marked with the Broker Reciprocity℠ logo or the Broker Reciprocity℠ thumbnail logo (a little black house) and detailed information about them includes the name of the listing brokers.

DISCLAIMER: The broker providing these data believes them to be correct, but advises interested parties to confirm them before relying on them in a purchase decision. This data is updated daily. Some properties which appear for sale on this web site may subsequently have sold and may no longer be available. By viewing these listings, you are agreeing to abide by the RMLS End-User License Agreement.

© 2026 Regional Multiple Listing Service of Minnesota, Inc. All rights reserved.

Digital Millennium Copyright Act (DMCA) Notice The Digital Millennium Copyright Act of 1998, 17 U.S.C. § 512 (the “DMCA”), provides recourse for copyright owners who believe that material appearing on the Internet infringes their rights under U.S. copyright law. If you believe in good faith that any content or material made available in connection with our website or services infringes your copyright, you (or your agent) may send us a notice requesting that the content or material be removed, or access to it blocked. Notices and counter-notices should be sent in writing by mail to Michael Bisping, Director, Customer Relations, Regional Multiple Listing Service of Minnesota, Inc, 2550 University Avenue West, Suite 259S Saint Paul, MN 55114 or by email to mbisping@northstarmls.com. Questions can be directed by phone to 651-251-3200.

The DMCA requires that your notice of alleged copyright infringement include the following information: (1) description of the copyrighted work that is the subject of claimed infringement; (2) description of the alleged infringing content and information sufficient to permit us to locate the content; (3) contact information for you, including your address, telephone number and e-mail address; (4) a statement by you that you have a good faith belief that the content in the manner complained of is not authorized by the copyright owner, or its agent, or by the operation of any law; (5) a statement by you, signed under penalty of perjury, that the information in the notification is accurate and that you have the authority to enforce the copyrights that are claimed to be infringed; and (6) a physical or electronic signature of the copyright owner or a person authorized to act on the copyright owner’s behalf. Failure to include all of the above information may result in the delay of the processing of your complaint.