Skip to Navigation

Search Thousands of Properties in Greater Minnesota & Western Wisconsin.

Property Details

20286 Saint Croix Trail N
Scandia, MN 55073

Price: $1,499,900

Listing # 7044063


Contact Agent

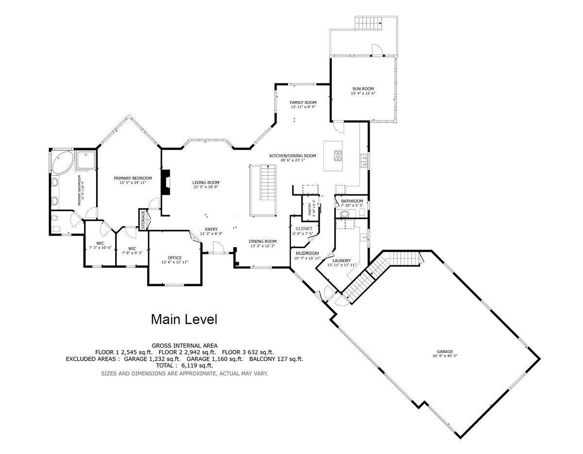
Stop settling for a home that can’t handle what you actually own. This private gated estate on 6.5+ acres gives you the rare chance to live and build in one place, with over 6,000 finished square feet designed for comfort and capability. The standout feature is a fully insulated and heated 40x60 workshop with reinforced concrete, high electrical capacity, and space to actually work, paired with an 8-car garage that finally solves your storage problem. Inside, you get one-level living with vaulted ceilings, a dream kitchen with premium appliances, heated floors, and a lower level built for entertaining with a second kitchen and open recreation space. Step outside to a quiet setting with a 3-season porch, patio, and room to breathe. Homes like this do not come up often. Schedule your private tour and see how it fits your lifestyle.

Basic Features:

Style Single Family
Type Residential
Zoning Residential-Single Family
Year Built 2003
School District Forest Lake
County Washington
Lot Size 600x339x284x349x526
Acreage 6.51 acres
Bedrooms 3
Total Baths 4
Garage 12 Car 44x29
Lot Description Tree Coverage - Medium
Above Grade 3,892 sq ft
Below Grade 2,459 sq ft
Tax $ / Year $11,042 / 2026
Tax ID
Legal Description

Includes:

Air-To-Air Exchanger,Central Vacuum,Cooktop,Dishwasher,Double Oven,Dryer,Electronic Air Filter,Exhaust Fan,Freezer,Humidifier,Gas Water Heater,Water Filtration System,Microwave,Range,Refrigerator,Stainless Steel Appliances,Wall Oven,Washer,Water Soften...

Rooms Size Level
Bar/Wet Bar Room 9x9 L
Bedroom 25x15 M
Bedroom 2 16x14 L
Bedroom 3 16x10 L
Bonus Room 38x14 L
Dining Room 12x13 M
Exercise Room 19x18 L
Family Room 20x25 L
Four Season Porch 15x15 M
Foyer 7x7 M
Garage 44x28 L
Kitchen 18x17 M
Laundry 15x9 M
Living Room 15x20 M
Office 13x13 M
Pantry (Walk-In) 6x5 M
Patio 31x31 L
Primary Bathroom 11x15 M
Recreation Room 18x22 L
Sauna 13x13 L
Sitting Room 13x9 M
Walk-In Closet 11x7 M
Additional Features
Government Programs
Terrain Type
Roads State Road
Baths Two Basement Baths,3/4 Basement,3/4 Jack & Jill,Double Sink,Full Primary,His and Her Closets ,Private Primary,Main Floor 1/2 Bath,Main Floor Full Bath,Walk-In Shower Stall
Basement Drain Tiled,Drainage System,Egress Window(s),Finished,Full,Concrete,Storage Space,Sump Basket,Walkout
Cooling Central Air,Zoned
Driveway
Electric 200+ Amp Service
Exterior Features Concrete,Frame
Fireplace Family Room,Gas,Living Room
Foundation 4084.00
Fuel Source Natural Gas
Handicap Access None
Heating Boiler,Forced Air,Fireplace(s),In-Floor Heating,Zoned
Other Buildings Garage(s),Workshop
Roof Architectural Shingle
Sewer Service Private Sewer,Tank with Drainage Field
Water Service Private,Well
Water Heater
Parking Lot Attached Garage,Concrete,Driveway - Other Surface,Floor Drain,Finished Garage,Garage Door Opener,Heated Garage,Insulated Garage,Multiple Garages,Secured,Underground
Exterior Construction
Laundry L

The data relating to real estate for sale on this web site comes in part from the Broker Reciprocity℠ Program of the Regional Multiple Listing Service of Minnesota, Inc. Real estate listings held by brokerage firms other than Coldwell Banker Nybo & Associates are marked with the Broker Reciprocity℠ logo or the Broker Reciprocity℠ thumbnail logo (a little black house) and detailed information about them includes the name of the listing brokers.

DISCLAIMER: The broker providing these data believes them to be correct, but advises interested parties to confirm them before relying on them in a purchase decision. This data is updated daily. Some properties which appear for sale on this web site may subsequently have sold and may no longer be available. By viewing these listings, you are agreeing to abide by the RMLS End-User License Agreement.

© 2026 Regional Multiple Listing Service of Minnesota, Inc. All rights reserved.

Digital Millennium Copyright Act (DMCA) Notice The Digital Millennium Copyright Act of 1998, 17 U.S.C. § 512 (the “DMCA”), provides recourse for copyright owners who believe that material appearing on the Internet infringes their rights under U.S. copyright law. If you believe in good faith that any content or material made available in connection with our website or services infringes your copyright, you (or your agent) may send us a notice requesting that the content or material be removed, or access to it blocked. Notices and counter-notices should be sent in writing by mail to Michael Bisping, Director, Customer Relations, Regional Multiple Listing Service of Minnesota, Inc, 2550 University Avenue West, Suite 259S Saint Paul, MN 55114 or by email to mbisping@northstarmls.com. Questions can be directed by phone to 651-251-3200.

The DMCA requires that your notice of alleged copyright infringement include the following information: (1) description of the copyrighted work that is the subject of claimed infringement; (2) description of the alleged infringing content and information sufficient to permit us to locate the content; (3) contact information for you, including your address, telephone number and e-mail address; (4) a statement by you that you have a good faith belief that the content in the manner complained of is not authorized by the copyright owner, or its agent, or by the operation of any law; (5) a statement by you, signed under penalty of perjury, that the information in the notification is accurate and that you have the authority to enforce the copyrights that are claimed to be infringed; and (6) a physical or electronic signature of the copyright owner or a person authorized to act on the copyright owner’s behalf. Failure to include all of the above information may result in the delay of the processing of your complaint.