6870 Spruce Lane
Corcoran, MN 55340
Price: $1,105,465
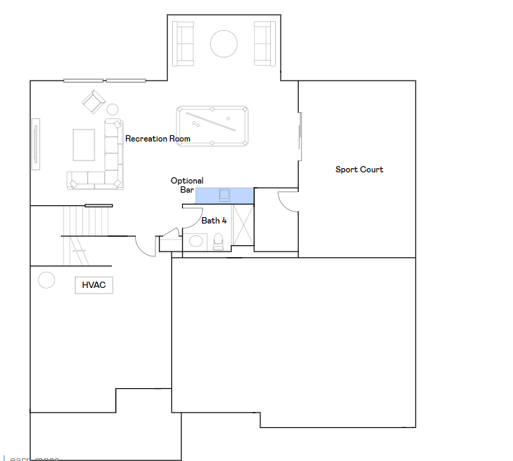
This home is under construction and available for an August closing! The Prestige plans are offered on some of the most desirable homesites in the Wayzata School District, featuring private yards and serene nature views. The spacious Sonoma plan boasts 4 bedrooms, 4.5 baths, a finished basement, and a 4-car garage, providing room for every lifestyle need. The bright, open main level seamlessly connects the kitchen, dining, and family areas, anchored by a cozy gas fireplace that adds warmth and charm. This level also includes a sequestered study, offering versatility for a home office, relaxing moments, or guests. Upstairs, the luxurious primary suite features a spa-like bath with a tiled shower, separate soaking tub, and walk-in closet. The upstairs also offers three secondary bedrooms, each with a walk-in closet, and a convenient laundry room. The finished lookout lower level expands entertainment space even further, complete with a recreation room featuring an electric fireplace, a wet bar, an additional 3/4 bath, and a sport court. Nestled in the scenic Tavera community, residents enjoy lush greenery, walking paths, and all the benefits of the top-rated Wayzata School District.
Basic Features:
| Style |
Single Family |
| Type |
Residential |
| Zoning |
Residential-Single Family |
| Year Built |
2026 |
| School District |
Wayzata |
| County |
Hennepin |
| Lot Size |
TBD |
| Acreage |
0.40 acres |
| Bedrooms |
4 |
| Total Baths |
5 |
| Garage |
4 Car |
| Lot Description |
Sod Included in Price,Underground Utilities |
| Above Grade |
2,872 sq ft |
| Below Grade |
1,200 sq ft |
| Tax $ / Year |
$0 / 2026 |
| Tax ID |
|
| Legal Description |
|
Includes:
Air-To-Air Exchanger,Cooktop,Dishwasher,Disposal,Double Oven,Exhaust Fan,Humidifier,Microwave,Refrigerator,Stainless Steel Appliances,Tankless Water Heater,Wall Oven
| Rooms |
Size |
Level |
| Athletic Court |
14x21 |
B |
| Bedroom |
15x16 |
U |
| Bedroom 2 |
11x10 |
U |
| Bedroom 3 |
11x10 |
U |
| Bedroom 4 |
13x12 |
U |
| Dining Room |
14x8 |
M |
| Family Room |
17x16 |
M |
| Kitchen |
16x16 |
M |
| Recreation Room |
33x15 |
B |
| Study |
11x12 |
M |
Additional Features
| Government Programs |
|
| Terrain Type |
|
| Roads |
Curbs,Paved Streets |
| Baths |
3/4 Basement,Double Sink,Full Primary,Private Primary,Main Floor 1/2 Bath,Separate Tub & Shower,Upper Level 3/4 Bath,Upper Level Full Bath |
| Basement |
Daylight/Lookout Windows,Finished |
| Cooling |
Central Air |
| Driveway |
|
| Electric |
200+ Amp Service |
| Exterior Features |
Stone,Vinyl |
| Fireplace |
Amusement Room,Electric,Family Room,Gas,Living Room |
| Foundation |
1636.00 |
| Fuel Source |
Natural Gas |
| Handicap Access |
None |
| Heating |
Forced Air,Fireplace(s) |
| New Construction |
1 |
| Roof |
Age 8 Years or Less,Asphalt |
| Sewer Service |
City Sewer/Connected |
| Water Service |
City Water/Connected |
| Water Heater |
|
| Parking Lot |
Attached Garage,Asphalt,Garage Door Opener |
| Exterior Construction |
|
| Laundry |
G |
The data relating to real estate for sale on this web site comes in part from the Broker Reciprocity℠ Program of the Regional Multiple Listing Service of Minnesota, Inc. Real estate listings held by brokerage firms other than Coldwell Banker Nybo & Associates are marked with the Broker Reciprocity℠ logo or the Broker Reciprocity℠ thumbnail logo (a little black house) and detailed information about them includes the name of the listing brokers.
DISCLAIMER: The broker providing these data believes them to be correct, but advises interested parties to confirm them before relying on them in a purchase decision. This data is updated daily. Some properties which appear for sale on this web site may subsequently have sold and may no longer be available. By viewing these listings, you are agreeing to abide by the RMLS End-User License Agreement.
© 2026 Regional Multiple Listing Service of Minnesota, Inc. All rights reserved.
Digital Millennium Copyright Act (DMCA) Notice
The Digital Millennium Copyright Act of 1998, 17 U.S.C. § 512 (the “DMCA”), provides recourse for copyright owners who believe that material appearing on the Internet infringes their rights under U.S. copyright law. If you believe in good faith that any content or material made available in connection with our website or services infringes your copyright, you (or your agent) may send us a notice requesting that the content or material be removed, or access to it blocked. Notices and counter-notices should be sent in writing by mail to Michael Bisping, Director, Customer Relations, Regional Multiple Listing Service of Minnesota, Inc, 2550 University Avenue West, Suite 259S
Saint Paul, MN 55114 or by email to mbisping@northstarmls.com. Questions can be directed by phone to 651-251-3200.
The DMCA requires that your notice of alleged copyright infringement include the following information: (1) description of the copyrighted work that is the subject of claimed infringement; (2) description of the alleged infringing content and information sufficient to permit us to locate the content; (3) contact information for you, including your address, telephone number and e-mail address; (4) a statement by you that you have a good faith belief that the content in the manner complained of is not authorized by the copyright owner, or its agent, or by the operation of any law; (5) a statement by you, signed under penalty of perjury, that the information in the notification is accurate and that you have the authority to enforce the copyrights that are claimed to be infringed; and (6) a physical or electronic signature of the copyright owner or a person authorized to act on the copyright owner’s behalf. Failure to include all of the above information may result in the delay of the processing of your complaint.