7176 61st S
Cottage Grove, MN 55016
Price: $1,214,990
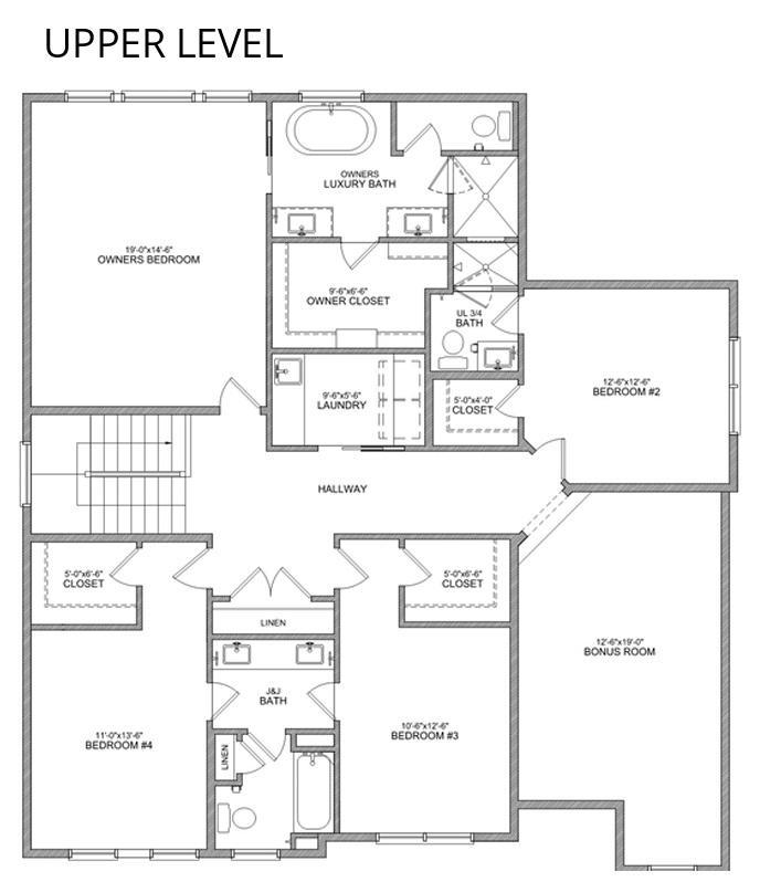
Welcome to Stonegate's award winning Eastbrooke community! This gorgeous home is situated at the highest point in the community, sits on .34 acres, backs up to city space, and features a 4-car garage! Your upper level has 4 bedrooms including your private owners bedroom with luxury ensuite, Jack and Jill bathroom, Junior Suite, added bonus room, and laundry room. Your main level showcases engineered wood flooring, white oak cabinetry, white oak shiplap with precast surround around your fireplace, quartz countertops + backsplash, office/flex room, sunroom, and a low maintenance deck. Andersen Fibrex windows, James Hardie siding, and fully landscaped property. This home will be a SHOW STOPPER! Come visit the model home to learn more about the finishes and features that are going into this home!
Basic Features:
| Style |
Single Family |
| Type |
Residential |
| Zoning |
Residential-Single Family |
| Year Built |
2026 |
| School District |
South Washington County |
| County |
Washington |
| Lot Size |
51x146x165x145 |
| Acreage |
0.35 acres |
| Bedrooms |
5 |
| Total Baths |
5 |
| Garage |
4 Car |
| Lot Description |
Property Adjoins Public Land,Sod Included in Price,Tree Coverage - Light |
| Above Grade |
3,392 sq ft |
| Below Grade |
1,104 sq ft |
| Tax $ / Year |
$2,432 / 2025 |
| Tax ID |
|
| Legal Description |
|
Includes:
Air-To-Air Exchanger,Chandelier,Cooktop,Dishwasher,Disposal,Double Oven,Dryer,ENERGY STAR Qualified Appliances,Exhaust Fan,Humidifier,Water Filtration System,Microwave,Refrigerator,Stainless Steel Appliances,Tankless Water Heater,Wall Oven,Washer,Water...
| Rooms |
Size |
Level |
| Bedroom |
15x19 |
U |
| Bedroom 2 |
13x12 |
U |
| Bedroom 3 |
11x13 |
U |
| Bedroom 4 |
11x14 |
U |
| Bedroom 5 |
12x11 |
L |
| Bonus Room |
13x23 |
U |
| Flex Room |
15x12 |
L |
| Game Room |
13x16 |
L |
| Great Room |
16x18 |
M |
| Informal Dining Room |
14x11 |
M |
| Laundry |
10x6 |
U |
| Office |
11x12 |
M |
| Recreation Room |
13x16 |
L |
| Sun Room |
13x11 |
M |
Additional Features
| Government Programs |
|
| Section |
5 |
| Terrain Type |
|
| Roads |
City Street,Cul De Sac,Curbs,No Outlet/Dead End,Paved Str... |
| Baths |
3/4 Basement,Double Sink,Bathroom Ensuite,Full Primary,Full Jack & Jill,Private Primary,Main Floor 1/2 Bath,Separate Tub & Shower,Upper Level 3/4 Bath,Walk-In Shower Stall |
| Basement |
Daylight/Lookout Windows,Drain Tiled,Finished,Concrete,Sump Pump,Tile Shower |
| Cooling |
Central Air |
| Driveway |
|
| Electric |
200+ Amp Service |
| Fireplace |
Family Room,Gas |
| Foundation |
1472.00 |
| Fuel Source |
Natural Gas |
| Handicap Access |
None |
| Heating |
Forced Air |
| New Construction |
1 |
| Roof |
Age 8 Years or Less,Architectural Shingle,Asphalt |
| Sewer Service |
City Sewer/Connected |
| Water Service |
City Water/Connected |
| Water Heater |
|
| Parking Lot |
Attached Garage,Asphalt,Garage Door Opener,Insulated Garage |
| Exterior Construction |
|
| Fencing |
None |
| Laundry |
E |
The data relating to real estate for sale on this web site comes in part from the Broker Reciprocity℠ Program of the Regional Multiple Listing Service of Minnesota, Inc. Real estate listings held by brokerage firms other than Coldwell Banker Nybo & Associates are marked with the Broker Reciprocity℠ logo or the Broker Reciprocity℠ thumbnail logo (a little black house) and detailed information about them includes the name of the listing brokers.
DISCLAIMER: The broker providing these data believes them to be correct, but advises interested parties to confirm them before relying on them in a purchase decision. This data is updated daily. Some properties which appear for sale on this web site may subsequently have sold and may no longer be available. By viewing these listings, you are agreeing to abide by the RMLS End-User License Agreement.
© 2026 Regional Multiple Listing Service of Minnesota, Inc. All rights reserved.
Digital Millennium Copyright Act (DMCA) Notice
The Digital Millennium Copyright Act of 1998, 17 U.S.C. § 512 (the “DMCA”), provides recourse for copyright owners who believe that material appearing on the Internet infringes their rights under U.S. copyright law. If you believe in good faith that any content or material made available in connection with our website or services infringes your copyright, you (or your agent) may send us a notice requesting that the content or material be removed, or access to it blocked. Notices and counter-notices should be sent in writing by mail to Michael Bisping, Director, Customer Relations, Regional Multiple Listing Service of Minnesota, Inc, 2550 University Avenue West, Suite 259S
Saint Paul, MN 55114 or by email to mbisping@northstarmls.com. Questions can be directed by phone to 651-251-3200.
The DMCA requires that your notice of alleged copyright infringement include the following information: (1) description of the copyrighted work that is the subject of claimed infringement; (2) description of the alleged infringing content and information sufficient to permit us to locate the content; (3) contact information for you, including your address, telephone number and e-mail address; (4) a statement by you that you have a good faith belief that the content in the manner complained of is not authorized by the copyright owner, or its agent, or by the operation of any law; (5) a statement by you, signed under penalty of perjury, that the information in the notification is accurate and that you have the authority to enforce the copyrights that are claimed to be infringed; and (6) a physical or electronic signature of the copyright owner or a person authorized to act on the copyright owner’s behalf. Failure to include all of the above information may result in the delay of the processing of your complaint.