1636 Woodlawn Circle
Waconia, MN 55387
Price: $1,175,000
Enjoy peaceful lakeside living in this well-maintained home set on a private road with a quiet, serene setting. Large windows overlook the lake, filling the home with natural light and showcasing beautiful views. The layout offers generous space, abundant storage, and convenient garage access from the basement.
Step outside to a private backyard retreat featuring a large deck, screened-in porch, hot tub, fire pit, and updated landscaping. Recent improvements include exterior paint, stained deck, new garage doors, quartz kitchen countertops, and fresh paint throughout.
Located just minutes from downtown Waconia, this home offers easy access to local shops, dining, wineries, and nearby parks including Carver Park Reserve, Lowry Nature Center, and Lake Waconia Regional Park. Surrounded by nature and wildlife, this property offers a rare blend of privacy, comfort, and convenience.
Basic Features:
| Style |
Single Family |
| Type |
Residential |
| Zoning |
Residential-Single Family |
| Year Built |
1997 |
| School District |
Waconia |
| County |
Carver |
| Lot Size |
78x261x270x88 |
| Acreage |
0.55 acres |
| Bedrooms |
5 |
| Total Baths |
4 |
| Garage |
3 Car |
| Lot Description |
Accessible Shoreline,Tree Coverage - Medium |
| Above Grade |
2,772 sq ft |
| Below Grade |
1,268 sq ft |
| Water Frontage |
70 ft |
| Tax $ / Year |
$12,992 / 2025 |
| Tax ID |
|
| Legal Description |
|
Includes:
Dishwasher,Gas Water Heater,Microwave,Range,Refrigerator
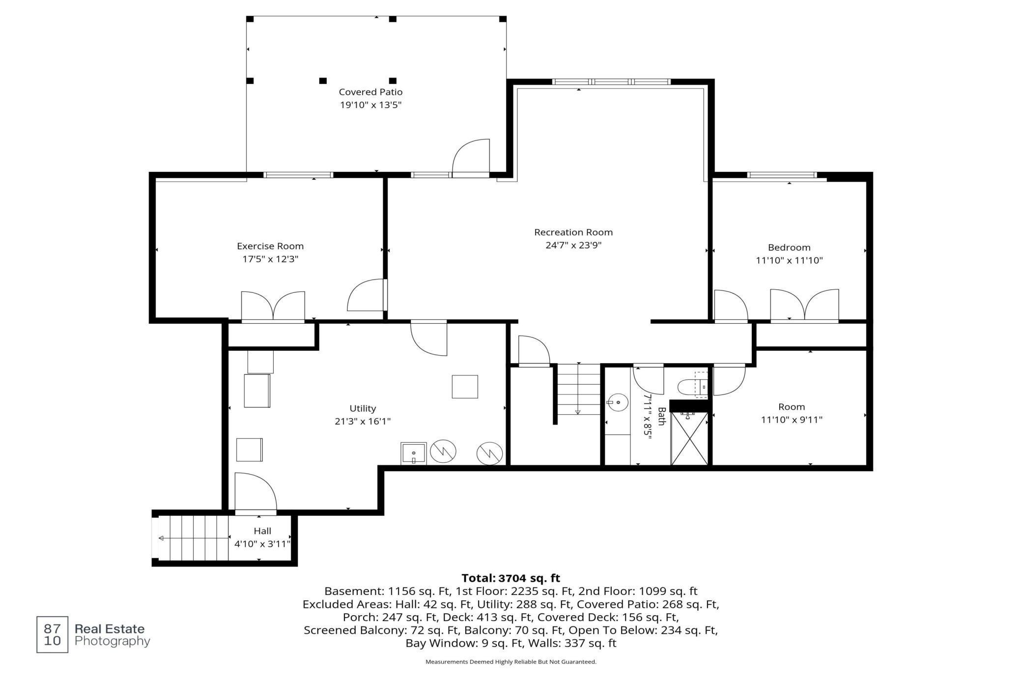
| Rooms |
Size |
Level |
| Bathroom |
5x9 |
U |
| Bedroom |
21x12 |
U |
| Bedroom 2 |
12x12 |
U |
| Bedroom 3 |
12x10 |
U |
| Bedroom 4 |
17x12 |
L |
| Bedroom 5 |
12x12 |
L |
| Dining Room |
10x12 |
M |
| Family Room |
17x12 |
M |
| Kitchen |
13x12 |
M |
| Living Room |
15x20 |
M |
| Office |
12x12 |
M |
| Primary Bathroom |
9x12 |
U |
| Recreation Room |
25x24 |
L |
| Sitting Room |
12x12 |
M |
| Storage |
12x10 |
L |
| Utility Room |
21x16 |
L |
Additional Features
| Government Programs |
|
| Section |
15 |
| Terrain Type |
|
| Roads |
Private Road |
| Baths |
3/4 Basement,Double Sink,Full Primary,Private Primary,Main Floor 1/2 Bath,Upper Level Full Bath,Jetted Tub |
| Basement |
Daylight/Lookout Windows,Finished,Sump Basket,Sump Pump |
| Cooling |
Central Air |
| Driveway |
|
| Electric |
100 Amp Service |
| Fireplace |
Two Sided,Living Room,Primary Bedroom |
| Foundation |
1536.00 |
| Fuel Source |
Natural Gas |
| Handicap Access |
None |
| Heating |
Forced Air |
| Other Buildings |
Storage Shed |
| Pool |
None |
| Roof |
Age Over 8 Years,Asphalt |
| Sewer Service |
City Sewer/Connected |
| Water Service |
City Water/Connected |
| Water Heater |
|
| Parking Lot |
Attached Garage |
| Exterior Construction |
|
| Exterior Features |
Wood |
| Laundry |
N |
The data relating to real estate for sale on this web site comes in part from the Broker Reciprocity℠ Program of the Regional Multiple Listing Service of Minnesota, Inc. Real estate listings held by brokerage firms other than Coldwell Banker Nybo & Associates are marked with the Broker Reciprocity℠ logo or the Broker Reciprocity℠ thumbnail logo (a little black house) and detailed information about them includes the name of the listing brokers.
DISCLAIMER: The broker providing these data believes them to be correct, but advises interested parties to confirm them before relying on them in a purchase decision. This data is updated daily. Some properties which appear for sale on this web site may subsequently have sold and may no longer be available. By viewing these listings, you are agreeing to abide by the RMLS End-User License Agreement.
© 2026 Regional Multiple Listing Service of Minnesota, Inc. All rights reserved.
Digital Millennium Copyright Act (DMCA) Notice
The Digital Millennium Copyright Act of 1998, 17 U.S.C. § 512 (the “DMCA”), provides recourse for copyright owners who believe that material appearing on the Internet infringes their rights under U.S. copyright law. If you believe in good faith that any content or material made available in connection with our website or services infringes your copyright, you (or your agent) may send us a notice requesting that the content or material be removed, or access to it blocked. Notices and counter-notices should be sent in writing by mail to Michael Bisping, Director, Customer Relations, Regional Multiple Listing Service of Minnesota, Inc, 2550 University Avenue West, Suite 259S
Saint Paul, MN 55114 or by email to mbisping@northstarmls.com. Questions can be directed by phone to 651-251-3200.
The DMCA requires that your notice of alleged copyright infringement include the following information: (1) description of the copyrighted work that is the subject of claimed infringement; (2) description of the alleged infringing content and information sufficient to permit us to locate the content; (3) contact information for you, including your address, telephone number and e-mail address; (4) a statement by you that you have a good faith belief that the content in the manner complained of is not authorized by the copyright owner, or its agent, or by the operation of any law; (5) a statement by you, signed under penalty of perjury, that the information in the notification is accurate and that you have the authority to enforce the copyrights that are claimed to be infringed; and (6) a physical or electronic signature of the copyright owner or a person authorized to act on the copyright owner’s behalf. Failure to include all of the above information may result in the delay of the processing of your complaint.